Restauration de
Monuments historiques
à Toulouse et sa région
Virginie Lugol est une entreprise spécialisée dans la restauration de monuments historiques et de maçonneries anciennes à Toulouse et sa région.
Virginie Lugol
EGLISE DE BERAT (31) – Restauration générale
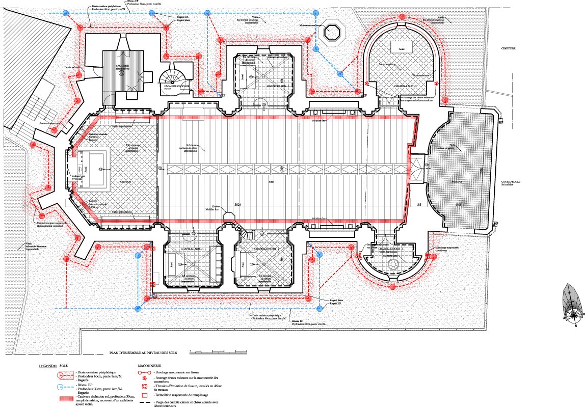
Dans le cadre d’un programme de mise en valeur, la ville de Bérat souhaite engager les travaux de restauration de l’église Saint Pierre située au cœur du Savès. Son clocher est un véritable point de repère pour les alentours.
L’église révèle aux visiteurs ses belles façades et son ensemble homogène de peintures murales intérieures datant de 1931.
Mais l’édifice demande surtout qu’une attention particulière soit portée à l’état général de ses maçonneries, à l’humidité qui par capillarité monte lentement dans les murs, aux enduits de ciment qui détériorent la brique et aux fissures qui, petit à petit, laissent l’eau endommager plus encore les décors intérieurs. C’est en soignant la cause et non les effets que l’église de Bérat retrouvera et pour longtemps, son prestige d’antan.


















